1.550.000 €

Villa unifamiliare con giardino a Caldaro

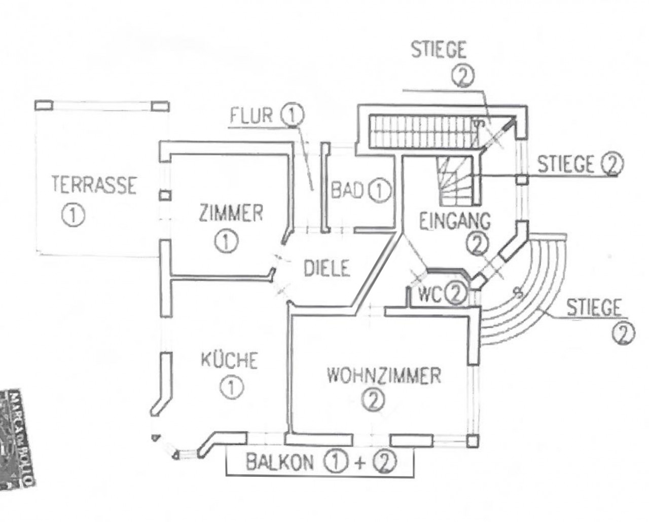
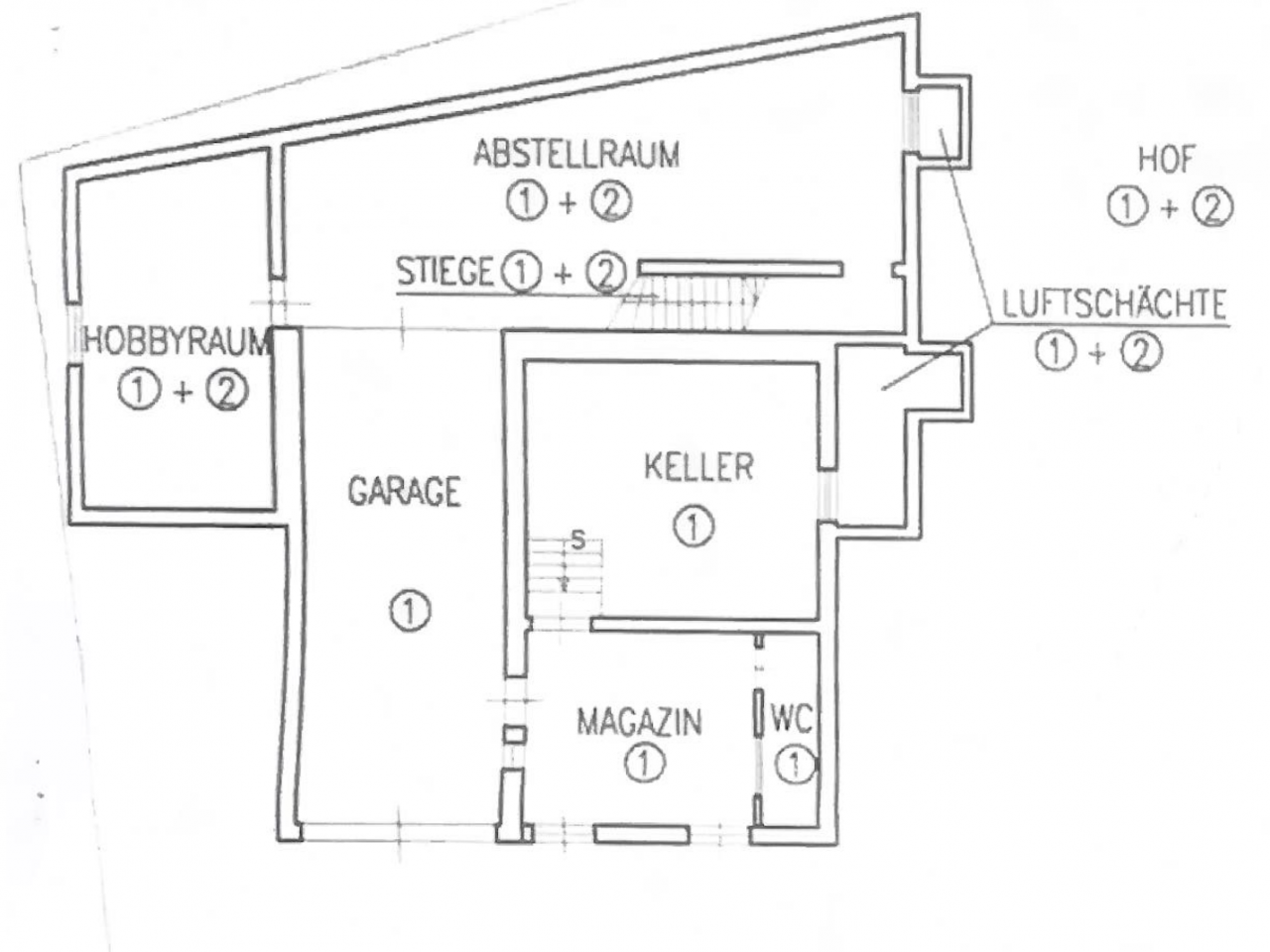
Planimetrie


Descrizione


Proponiamo in vendita una splendida villa unifamiliare con giardino privato e vista spettacolare sul lago di Caldaro. L’immobile, non convenzionato, è attualmente suddiviso in due unità abitative completamente autonome, ideale per due nuclei familiari. Volendo, le due unità possono essere facilmente unite per creare un’unica abitazione spaziosa.

Al piano terra si trova un comodo bilocale con ingresso indipendente, composto da soggiorno con angolo cottura, camera da letto, bagno e terrazza vivibile con affaccio sul giardino.

La seconda unità abitativa è un ampio quadrilocale disposto su due livelli. Al primo piano si trovano la cucina, il soggiorno con accesso diretto al balcone e un bagno di servizio. Il secondo piano, mansardato, è composto da due camere matrimoniali (di cui una con bagno en suite), entrambe con accesso a una terrazza panoramica, una camera singola, uno studio, un bagno principale con vasca e doccia, una lavanderia e un balcone.

Al piano seminterrato la proprietà dispone di un ampio garage con più posti auto, due magazzini, una cantina e un ulteriore servizio.

All’esterno si trova un’area pavimentata in cemento che offre spazio per diversi posti auto scoperti, garantendo ulteriore comodità per la famiglia e gli ospiti.

Completa l'immobile un curato giardino privato con piscina, perfetto per godersi momenti di relax in totale privacy.

convenzionato: no
superficie commerciale: 307mq
superficie calpestabile: 163mq
riscaldamento: autonomo a gas
spese condominiali: 0€/mese
classe energetica: D

Dettagli


  • Riferimento280
  • Prezzo1.550.000 €
  • LocalitàCaldaro Sulla Strada del Vino
  • Contrattovendita
  • Bagni3
  • Camere+3
  • Mq307

Informazioni aggiuntive

  • Totale piani unita
  • Totale piani unita
  • Totale piani unita
  • Totale piani unita
  • Mq giardino: 340
  • Mansarda
  • Riscaldamento autonomo
  • Giardino
  • Ingresso indipendente
  • Garage doppio
  • Soggiorno angolo cottura
  • Terrazzi: 2
  • Poggioli: 1
  • Lavanderia
  • Camino
  • Stato d'uso: buono
  • Piscina
  • Accesso disabili
  • Frigorifero
  • Lavatrice
  • Lavastoviglie
  • Cantina
  • Forno
  • Cucina arredata
  • Tapparelle motorizzate
  • Porta blindata

 

2
2
D
n/d
n/d