920.000 €

Porzione di casa con ampio giardino privato a Merano

Planimetrie


Descrizione


Merano, Via Verdi –Porzione di Casa con ampio giardino privato: In una zona residenziale tranquilla e molto richiesta di Merano, proponiamo in esclusiva questo elegante porzione di casa disposta su tre livelli, situato in un condominio costruito nel 2001.

L’abitazione si compone come segue:

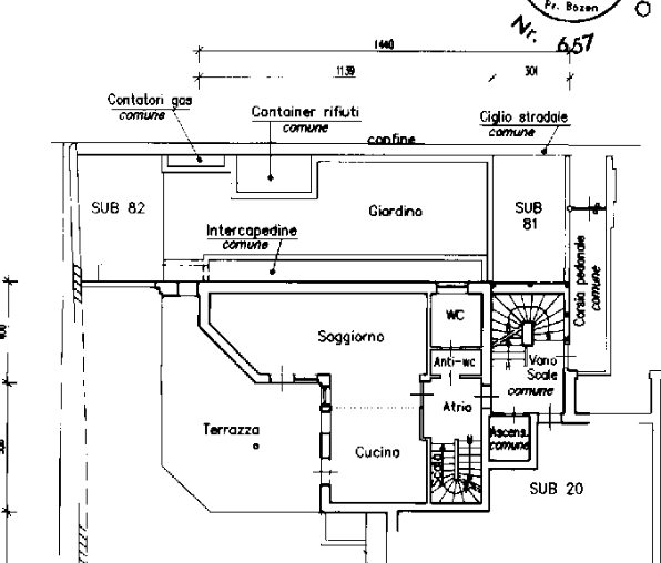
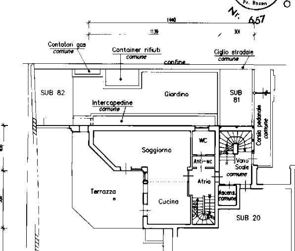
Piano terra: ingresso, luminoso soggiorno con zona pranzo e cucina abitabile, entrambi con accesso diretto al giardino privato di circa 380 m², spazioso e soleggiato per gran parte della giornata. Completa il piano un bagno finestrato di servizio.

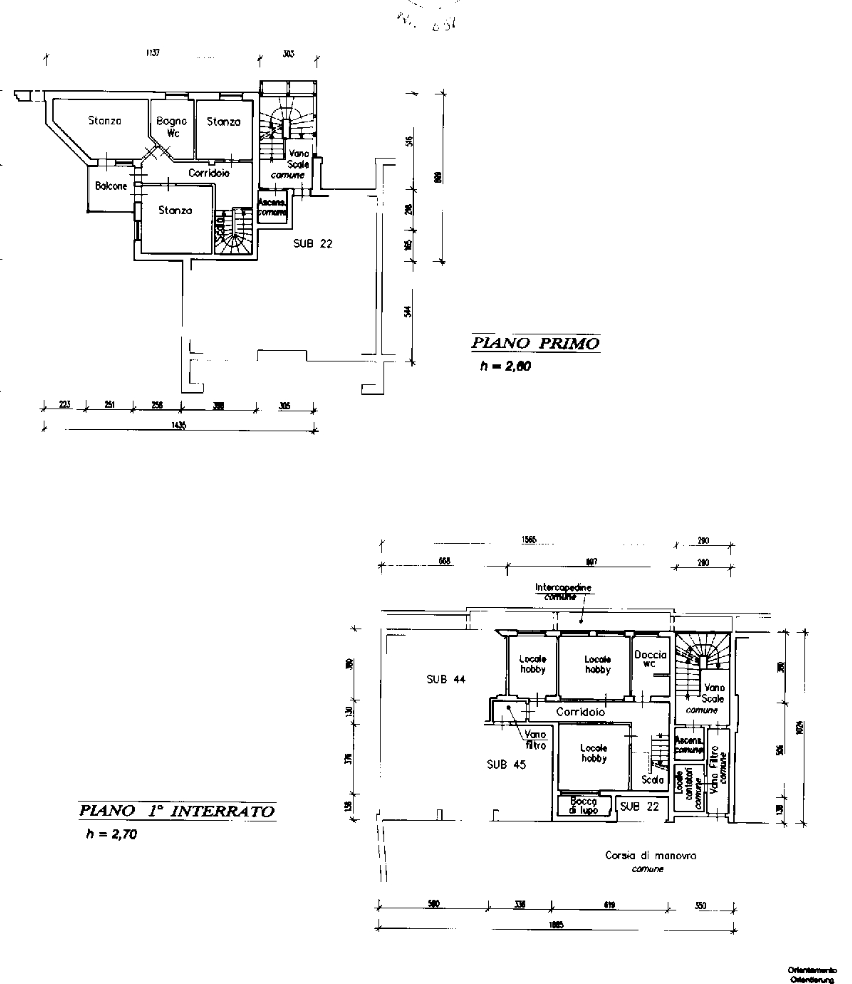
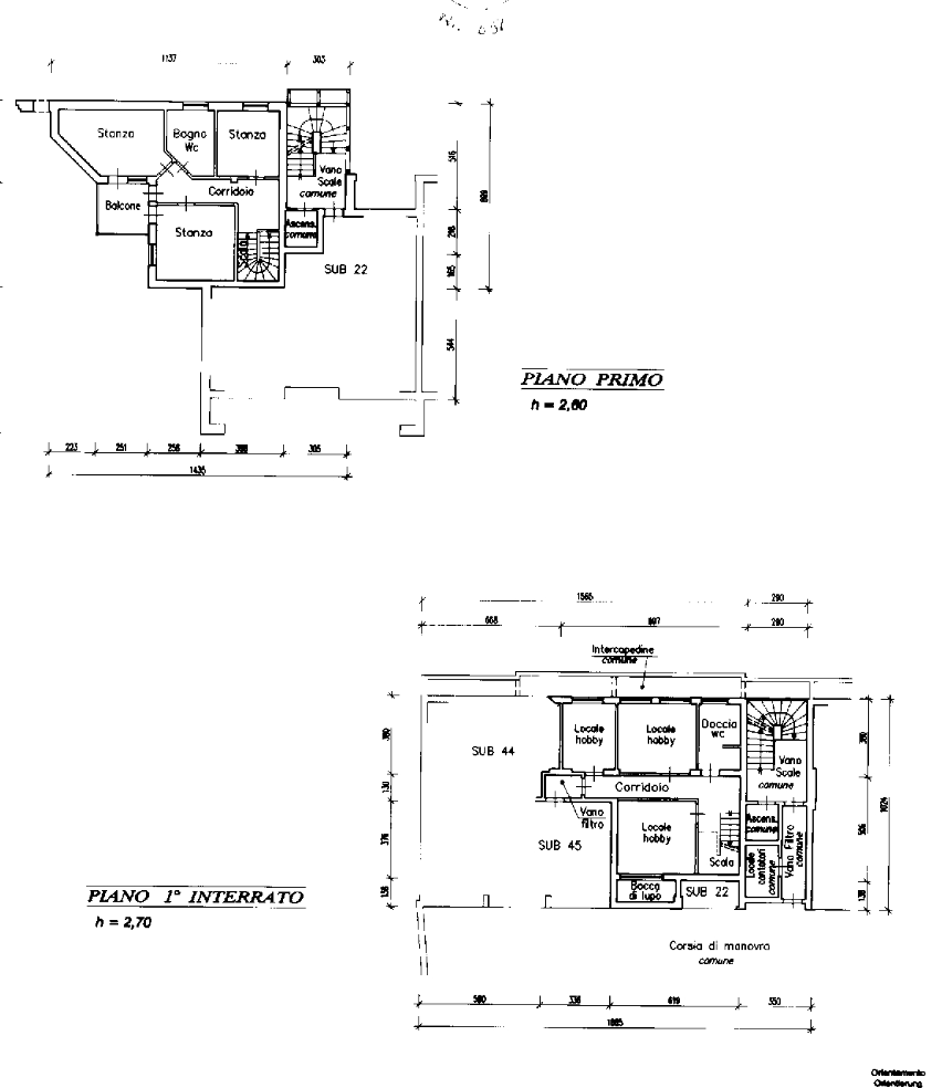
Primo piano: zona notte con due camere matrimoniali (una delle quali dotata di cabina armadio) e una camera singola. Tutte le camere matrimoniali dispongono di accesso al terrazzino. Il piano è servito da un ampio bagno finestrato con vasca e doccia.

Piano interrato: taverna, stanza hobby, lavanderia, cantina e un ulteriore bagno di servizio.

Completano la proprietà un garage doppio con accesso diretto all’abitazione e un posto auto esterno privato.

La caldaia è di recente installazione (2025).

L’immobile viene venduto arredato con mobili su misura, realizzati con materiali di qualità e perfettamente integrati negli spazi.

convenzionato: no
superficie commerciale: 247 mq
superficie calpestabile: 109mq
riscaldamento: autonomo a gas
spese condominiali: 200/mese
classe energetica: D

Dettagli


  • Riferimento294
  • Prezzo920.000 €
  • LocalitàMerano
  • Contrattovendita
  • Bagni3
  • Camere3
  • Mq247

Informazioni aggiuntive

  • Totale piani unita
  • Totale piani unita
  • Totale piani unita
  • Totale piani unita
  • Mq giardino: 380
  • Taverna
  • Riscaldamento autonomo
  • Giardino
  • Ingresso indipendente
  • Garage doppio
  • Posto auto
  • Soggiorno angolo cottura
  • Terrazzi: 2
  • Piano interrato
  • Piano terra
  • Primo piano
  • Stato d'uso: buono
  • Ripostigli: 1
  • Accesso disabili
  • Cantina
  • Cucina arredata
  • Porta blindata

 

2
2
D
n/d
n/d