595.000 €

Grande appartamento duplex a Egna

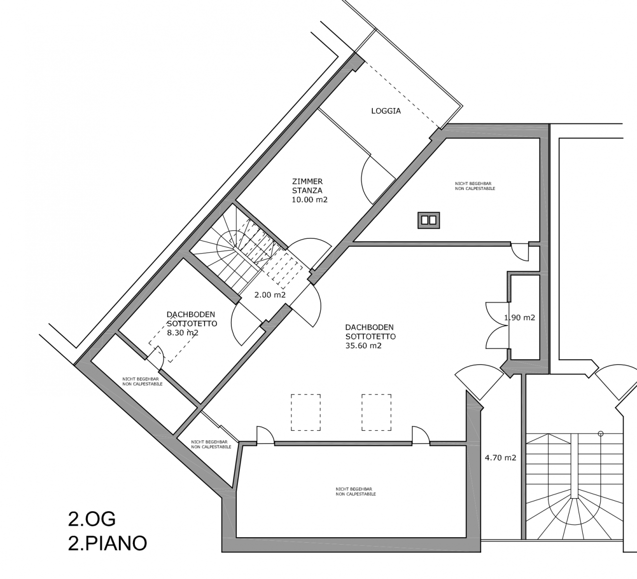
Planimetrie


Descrizione


Con mandato in esclusiva: In una zona soleggiata, al primo, secondo e terzo piano di una palazzina senza ascensore con solo 4 appartamenti, proponiamo questo ampio appartamento con doppia esposizione e disponibile da subito!

L'appartamento è composto nel seguente modo:

Primo piano: ingresso, cucina, soggiorno con balcone che collega entrambi i vani, 1 camera matrimoniale, 2 camere singole, WC, grande bagno finestrato e ripostiglio.
Secondo piano: ampia sala hobby che si potrebbe utilizzare anche come salotto, camera singola con loggia, bagno finestrato e ripostiglio.
Terzo piano: sottotetto collegato dall'interno con una botola.
Inoltre, l'immobile include 2 cantine e un garage di 27 mq al piano terra.

L'immobile viene venduto con arredamento su misura in legno massiccio ed è disponibile da subito!

convenzionato: no
superficie commerciale: 203mq
superficie calpestabile: 95mq + 63mq
riscaldamento: autonomo a gas
spese condominiali: 5€/mese
classe energetica: F IPE 97,89 kwh/m²/anno (efficienza involucro) - 43,59 KG CO2/m²/anno (efficienza complessiva)

Dettagli


  • Riferimento131
  • Prezzo595.000 €
  • LocalitàEgna
  • Contrattovendita
  • Bagni3
  • Camere+3
  • Mq203

Informazioni aggiuntive

  • Mansarda
  • Riscaldamento autonomo
  • Terrazzi: 1
  • Poggioli: 1
  • Cucina
  • Soggiorno
  • Camino
  • Garage
  • Stato d'uso: buono
  • Ripostigli: 1
  • Frigorifero
  • Lavatrice
  • Lavastoviglie
  • Cantina
  • Forno
  • Cucina arredata
  • Porta blindata

 

2
2
F
n/d
n/d