395.000 €

Casa singola con giardino e terrazza a Salorno

Planimetrie


Descrizione


Pochi; con incarico in esclusiva proponiamo in vendita una casa singola situata in una zona tranquilla e interna. L’immobile è stato costruito nel 1989 e successivamente ampliato nel 2015 con la realizzazione di un piano inferiore, suddividendo la proprietà in due unità indipendenti.

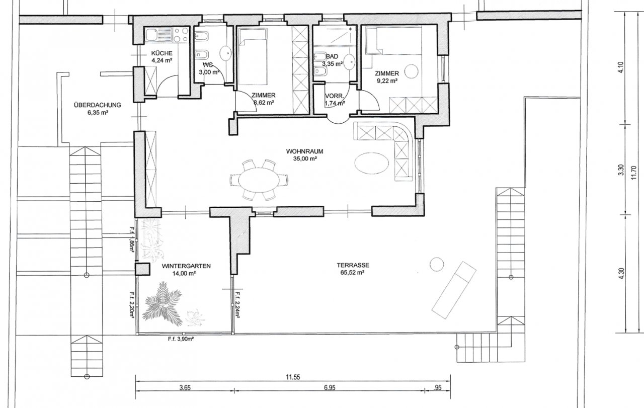
La casa si sviluppa su due piani per circa 100 m² calpestabili totali, è libera su quattro lati ed è circondata da un giardino privato.

Il piano terra ospita l’abitazione principale, con ingresso indipendente, ed è composto da cucina, ampio soggiorno, camera matrimoniale, camera singola, due bagni finestrati, una veranda di 14 m² realizzata nel 2015 con camino e una terrazza di 65 m².

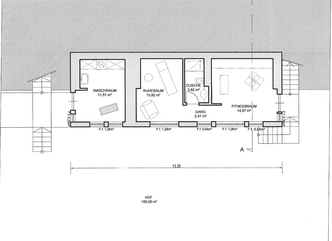
Al piano interrato si trova un appartamento bilocale con ingresso indipendente, fabbricato nel 2015 e mai utilizzato, composto da cucina/soggiorno, una camera matrimoniale e un bagno finestrato. L’appartamento è attualmente utilizzato e classificato anche come sala fitness e sala relax. Inoltre, l’immobile dispone di una lavanderia con accesso separato.

L’offerta è completata da un ampio giardino di circa 300 m² che circonda la casa e da due posti auto esterni, che garantiscono ulteriore comodità.

Inoltre la casa dispone di una quota in comproprietá per una grande piscina condominiale che é appena stata completamente ristrutturata.

La casa viene venduta nello stato di fatto ed è disponibile da subito!

convenzionato: no
superficie commerciale: 168mq
superficie calpestabile: 65mq + 34mq
riscaldamento: autonomo a gas
spese condominiali: ca. 120€/mese per la piscina
classe energetica: F

Dettagli


  • Riferimento315
  • Prezzo395.000 €
  • LocalitàSalorno
  • Contrattovendita
  • Bagni3
  • Camere2
  • Mq168

Informazioni aggiuntive

  • Totale piani unita
  • Totale piani unita
  • Totale piani unita
  • Totale piani unita
  • Mq giardino: 300
  • Riscaldamento autonomo
  • Giardino
  • Ingresso indipendente
  • Posto auto
  • Allarme
  • Terrazzi: 2
  • Lavanderia
  • Piano terra
  • Primo piano
  • Cucina
  • Soggiorno
  • Camino
  • Stato d'uso: buono
  • Piscina
  • Forno
  • Cucina arredata

 

2
2
F
n/d
n/d